Exterior

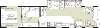
Floorplan

Interior


|
This
motorhome features:
39 feet in length and sleeps six comfortablly. This Fleetwood Bounder is fully equipped with a Kitchen, Living Area, Flat Screen TV's, Surround System, Washer/Dryer, Dual-Furnace, Dual-Air Conditioners and Satellite hookup.
The main living area has a large slide out and the leather furniture completes the area. It is equipped with a deisel generator in those cases when you are not hooked up to a camp site. Outside there is ample storage and a large awning.
Weekend Rates available starting September 6, 2012. Call or email for pricing
Click
here for vehicle pickup location
|